CLAUDIO VERGARA VERA
Arquitecto / Magíster BIM Management
Experiencia
- Dirección integral de proyectos arquitectónicos en todas sus etapas.
- Gestión estratégica y coordinación multidisciplinaria.
- Implementación y gestión BIM bajo estándar ISO 19650.
- Transformación digital aplicada a procesos de diseño y construcción.
- Consultoría especializada para organizaciones y mandantes de alta exigencia.
- Desarollo de proyectos arquitectónicos complejos.
Sobre mí
Arquitecto con amplia experiencia en el desarrollo y dirección integral de proyectos de arquitectura, desde su concepción estratégica hasta la ejecución final. Integro diseño, gestión avanzada, metodologías BIM y transformación digital para optimizar procesos, reducir riesgos y maximizar el valor de cada proyecto. Académico por concurso público y especialista en implementación de estándares internacionales, combinando experiencia profesional, visión estratégica y tecnología aplicada a la construcción.
Visión
Cada encargo es único, siendo el proyecto de arquitectura una respuesta personalizada a las necesidades y aspiraciones de cada mandante.
El desarrollo de cada proyecto considera desde los primeros esbozos hasta el término de la obra, integrando soluciones innovadoras y eficaces.
Servicios
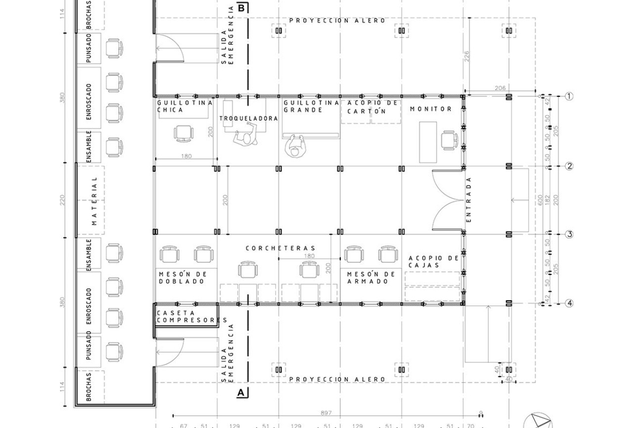
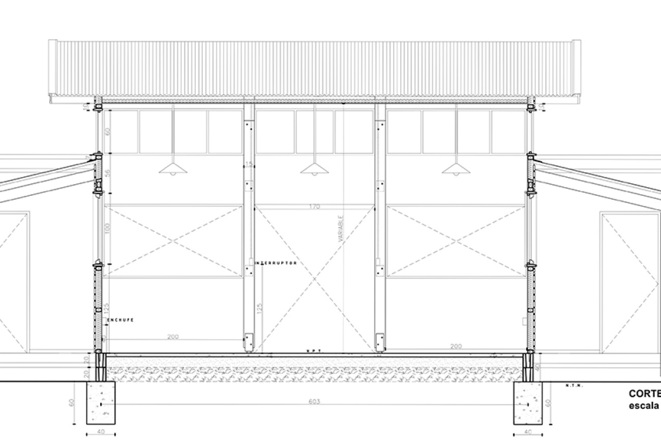
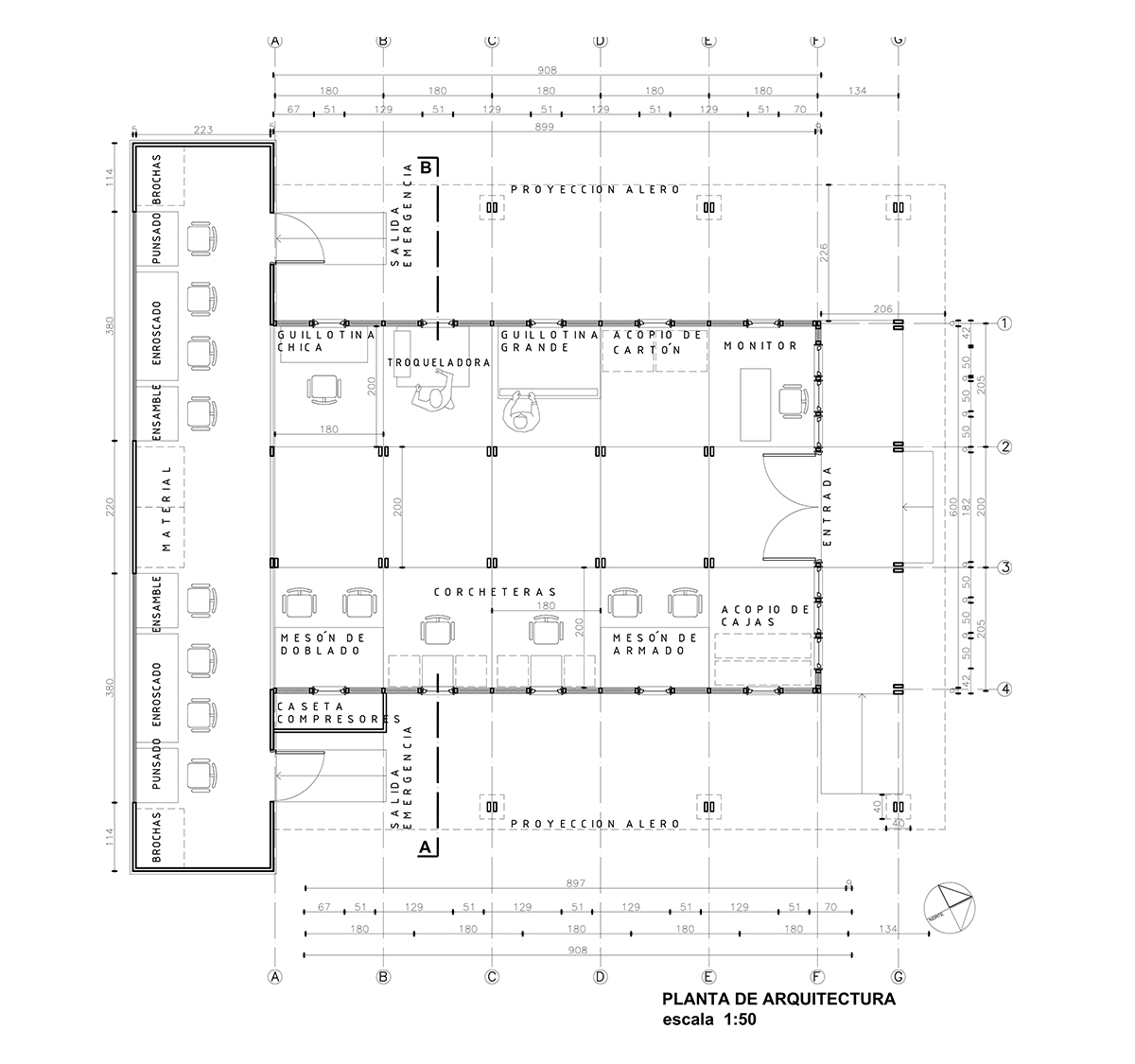
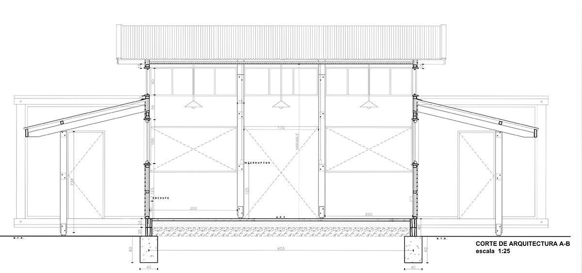
- Obra nueva y remodelaciones en proyectos habitacionales, industriales y de equipamiento.
- Evaluación y gestión inmobiliaria.
- Consultoría en Arquitectura y Construcción
- Gestión e implementación BIM.
- Consultoría BIM bajo NCh-ISO 19650



















































































